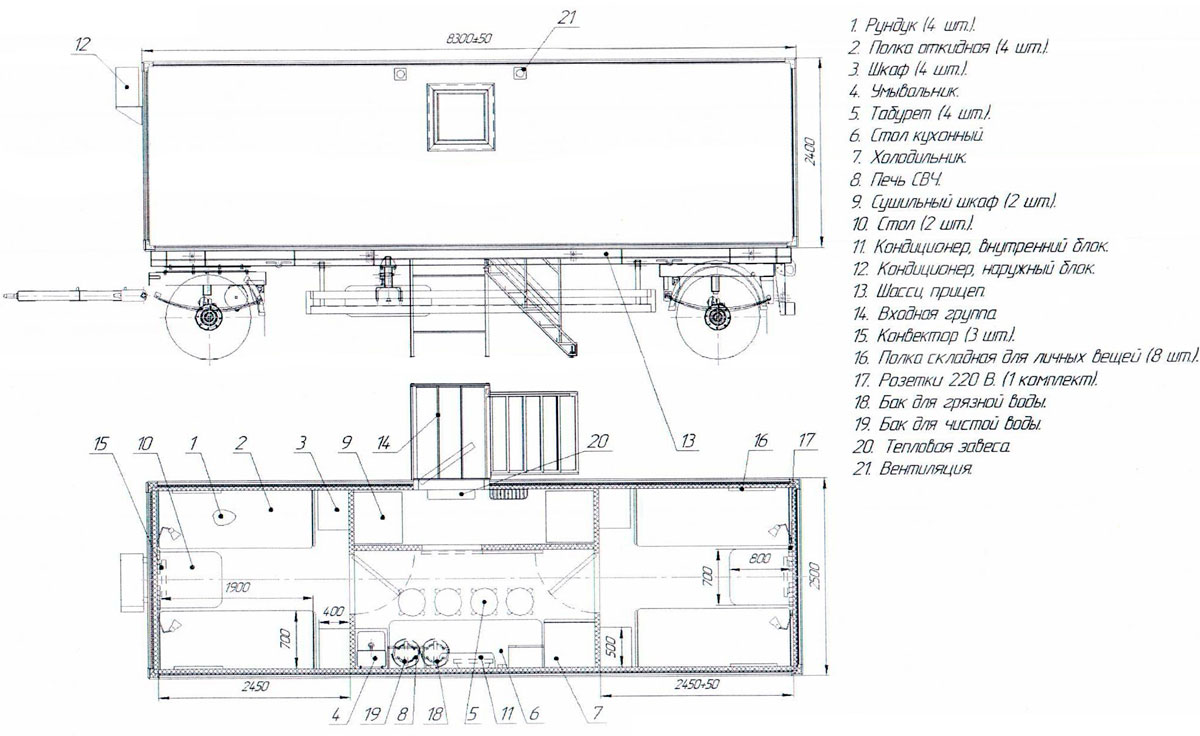
Прицеп-фургон жилой марки УЗСТ ПФ2-004
стоимость доставки и выбранных опций
| Технические характеристики прицепа-фургона ПФ2-004 | |
|---|---|
| Снаряжённая масса | 9500 кг |
| Технически допустимая максимальная масса | 10000 кг |
| Распределение максимальной массы | Первая ось – 5000 кг, вторая ось – 5000 кг |
| Максимально допустимая нагрузка на шины | Первая ось – 7000 кг, вторая ось – 7000 кг |
| Диаметр сцепной петли дышла | 90 мм |
| Высота сцепной петли | 900 мм |
| База | 6028 мм |
| Подвеска | Рессорная, без реактивных штанг |
| Колея | 2040 мм |
| Количество осей х количество колес / запасных колес | 2х4/1, передняя ось поворотная |
| Оси (Каталог осей и подвесок) | HJ |
| Шины (Каталог шин) | 295/80 R22,5 |
| Тормозная система | |
| Пневматическая барабанная система | Двухпроводная, колодочная |
| Антиблокировочная тормозная система | ABS |
| Стояночный тормоз, клапан блокировки стояночных тормозных камер | Энергоаккумуляторы на задней колесной оси |
| Тормозные пневморазъемы | Головка соединительная с фильтром (питающая) 952 201 012 0 и головка соединительная с фильтром (управляющая) 952 251 011 0 |
| Привод тормозов, управление ABS | Двухпроводная схема (питание+управление) с ABS 4S/3M |
| Фургон | |
| Отсеки | Два жилых отсека, кухонный отсек, тамбур |
| Тип фургона |
Изотермические монолитные сэндвич-панели. Склеены путем вакуумного прессования с применением огнестойкого клея Пожарная безопасность панелей подтверждена сертификатами. Сэндвич-панели соответствуют классу пожарной опасности НГ/Г1 в соответствии с Федеральным законом № 123-ФЗ Сопротивление теплопередаче панелей соответствует СП 50.13330.2012. Оптимальная толщина подбирается под климатическую зону |
| Состав сэндвич-панелей (стены, потолок) |
|
| Пол |
Имеет улучшенные термоизоляционные характеристики и состоит из сэндвич-панелей:
|
| Входная группа |
|
| Стояночные домкраты | С возможностью регулировки для установки прицеп-фургона с учетом особенности площадки |
| Подвесные ящики и рундуки снаружи фургона |
|
| Электрооборудование |
Электропроводка выполнена по современной и безопасной системе TN-S с полным соответствием правилам ПУЭ для максимальной защиты от поражения током и возгорания |
| Окна | Пластиковые двухкамерные поворотно-откидные с москитной сеткой и жалюзи со ставнями – 3 шт. |
| Освещение |
Светодиодные светильники Предусматривается рабочее, дежурное и аварийное освещение |
| Комплект ЗИП |
|
| Средства безопасности |
|
| Жилой отсек | |
| Количество жилых отсеков | 2 шт. |
| Вместимость | 8 человек |
| Отопление | Электронагревательные приборы конвекционного типа |
| Комплектация |
|
| Кухонный отсек | |
| Отопление | Электронагревательные приборы конвекционного типа |
| Комплектация |
|
| Тамбур (сушильный отсек) | |
| Комплектация |
|
Прицеп-фургон в сцепке с тягачом
Назначение
Жилой прицеп-фургон обеспечивает комфортные условия для проживания мобильных бригад на вахте.
Диапазон рабочих температур: от -45°C до +45°C. Прицеп может использоваться на дорогах всех категорий в условиях умеренного климата.
Отсеки фургона оснащены автоматической пожарной сигнализацией и системой оповещения с выводом светозвуковых оповещателей на улицу. Сигнал о срабатывании системы передается с внутреннего приемно-контрольного прибора на пост круглосуточного дежурного персонала.
Рама
Рама – металлическая сварная состоит из двух лонжеронов швеллерного сечения и двух боковых лонжеронов швеллерного сечения, соединенных между собой поперечинами/
Конструкция фургона
Вагон-дом собран из монолитных сэндвич-панелей (по одной на каждую стену, пол и потолок), что делает конструкцию цельной и энергоэффективной. Все панели склеены под вакуумным прессом с использованием огнестойкого клея.
СТЕНЫ И ПОТОЛОК
- Наружный слой: оцинкованная сталь с полимерным покрытием (0,7 мм)
- Утеплитель: Слой теплоизоляции толщиной 100 мм.
- Внутренний слой: Гладкий стекломагнезитовый лист. Этот материал не поддерживает горение, что является ключевым элементом противопожарной защиты помещения. Он также устойчив к влаге и допускает влажную уборку.
ПОЛ
Имеет улучшенную теплоизоляцию. Многослойная структура включает:
- Верхнее покрытие: износостойкий линолеум.
- Основание: два слоя влагостойкой фанеры (12 мм и 8 мм).
- Утеплитель: 60 мм.
- Нижний слой: оцинкованная сталь (0,7 мм).
ВХОДНАЯ ДВЕРЬ
Открывается наружу, снабжена ручками с внутренней и внешней стороны.
ЛЕСНИЦА
Регулируемая металлическая лестница-площадка. На время перевозки удобно размещается в подпольном рундуке.
Комплектация жилой комнаты «под ключ»
Всё необходимое для комфортного проживания уже включено в стоимость:
- Отопление: 2 конвектора с автоматической регулировкой температуры
- Мебель: Двухъярусная кровать с ящиком, 4 шкафа, 2 письменных стола
- Постельные принадлежности: 8 полных комплектов (одеяло, матрац, подушка)
- Организация пространства: 8 индивидуальных полок у кроватей, жалюзи, москитные сетки
- Электрика: 12 удобно расположенных розеток, ввод для антенного кабеля
- Вентиляция: 2 вентиляционных клапана
Комплектация кухонного блока
Кухонный блок полностью укомплектован для комфортного использования. Всё продумано до мелочей для готовки, приема пищи и соблюдения санитарных норм:
- Бытовая техника: Холодильник, микроволновая печь и кондиционер для создания комфортного микроклимата
- Отопление и вентиляция: Электроконвектор с терморегулятором и отдельный вентиляционный узел для свежего воздуха
-
Мебель и сантехника:
– Практичная тумба с раковиной из нержавеющей стали и зеркалом
– Стол/столешница и 4 табурета
– Умывальник -
Коммуникации: Продуманная электрическая разводка с 4 розетками
Важно: Канализация с подогреваемым патрубком (диаметр 50 мм) для эксплуатации в холодное время года. Система включает наружный бак для стоков на 50 литров с утепляющим чехлом -
Организация и безопасность:
– Аптечка и специальное место для ее крепления
– Металлический сейф-ящик для важных документов
– Информационный стенд с карманами формата А4 на двери
Планировка Прицеп-фургон жилой марки УЗСТ ПФ2-004
Вас также может заинтересовать:

Прицеп-фургон грузовой марки УЗСТ ПФ2-005








